3 Beds Ground Floor in Benijofar, ALICANTE

  • from 329.900€
Alicante, Benijófar, Costa Blanca Sur, Spain
For Sale
Alicante, Benijófar, Costa Blanca Sur, Spain
  • from 329.900€

Overview

  • CBS2602PVR
  • Property ID
  • Ground Floor
  • Property Type
  • 3
  • Bedrooms
  • 2
  • Bathrooms
  • 81
  • m2

Description

New Build Apartments in Benijofar Modern Living in a Prime Location

Exclusive New Development on the Costa Blanca South
This new residential development consists of 18 modern apartments located at the entrance of Benijofar, within walking distance of the town centre. Set in one of the fastest growing areas of the Costa Blanca South, the project combines contemporary architecture, quality materials and a strategic location, ideal for both permanent living and investment.

Apartment Types to Suit Every Lifestyle
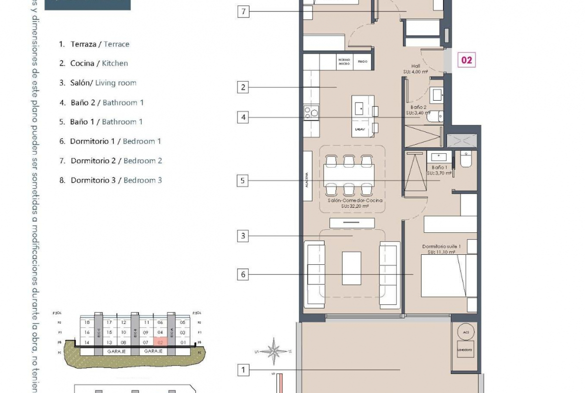
The development offers spacious apartments with three bedrooms and two bathrooms, including one ensuite. Buyers can choose between ground floor homes with large terraces and private gardens, middle floor apartments with generous terraces, or penthouses with terrace and private solarium. The solarium include pre installation for a summer kitchen, perfect for enjoying the Mediterranean climate.

Modern Design and High Level Comfort
Each apartment has been carefully designed to provide bright and open living spaces with a modern and functional layout. The homes feature an open plan living and dining area, a fully fitted kitchen with upper and lower cabinets, and high quality finishes throughout. The bedrooms are spacious and comfortable, while the bathrooms are fitted with modern materials and elegant details.

The residential complex includes a communal swimming pool and landscaped gardens, creating a relaxing environment for residents. All homes are equipped with pre installation for ducted air conditioning and heating, exterior carpentry with thermal break and double glazing, aerothermal system for hot water, and a reinforced security entrance door. Each apartment also includes a private parking space and storage room in the basement, with lift access to all floors.

Benijofar A Charming Town with Full Services
Benijofar is a well established Spanish town that offers a perfect balance between traditional charm and modern living. The town centre features local shops, supermarkets, pharmacies, restaurants and a welcoming atmosphere all year round. Nature lovers can enjoy nearby green areas and walking routes, while golf courses and leisure facilities are just a short drive away.

Excellent Connections and Key Distances
Guardamar del Segura beaches are approximately 9 km away. La Finca Golf and La Marquesa Golf courses are around 6 km from the development. Water parks in Rojales and Torrevieja are located at approximately 4 km and 12 km. Zenia Boulevard shopping centre is about 17 km away. Alicante International Airport is approximately 35 km, offering regular flights across Europe.

An Ideal Home or Investment Opportunity
Thanks to its modern design, excellent location and strong rental demand in the area, these apartments are ideal as a permanent residence, holiday home or smart investment on the Costa Blanca.

Contact Us Today
Discover your new apartment in Benijofar. Contact us now for more information or to arrange a private viewing.

Schedule a Tour

Tour Type

Mortgage Calculator

Monthly
  • Principal & Interest
  • Property Tax
  • Home Insurance
  • PMI
%

Similar Listings

Compare listings

Compare
Euro Prestige
  • Euro Prestige